GRINGER.
TIPOLOGÍA: Retail
UBICACIÓN: Caballito, CABA, Buenos Aires, Argentina.
M2: 31 M2
TIPO DE PROYECTO: Diseño de mobiliario e interiorismo.

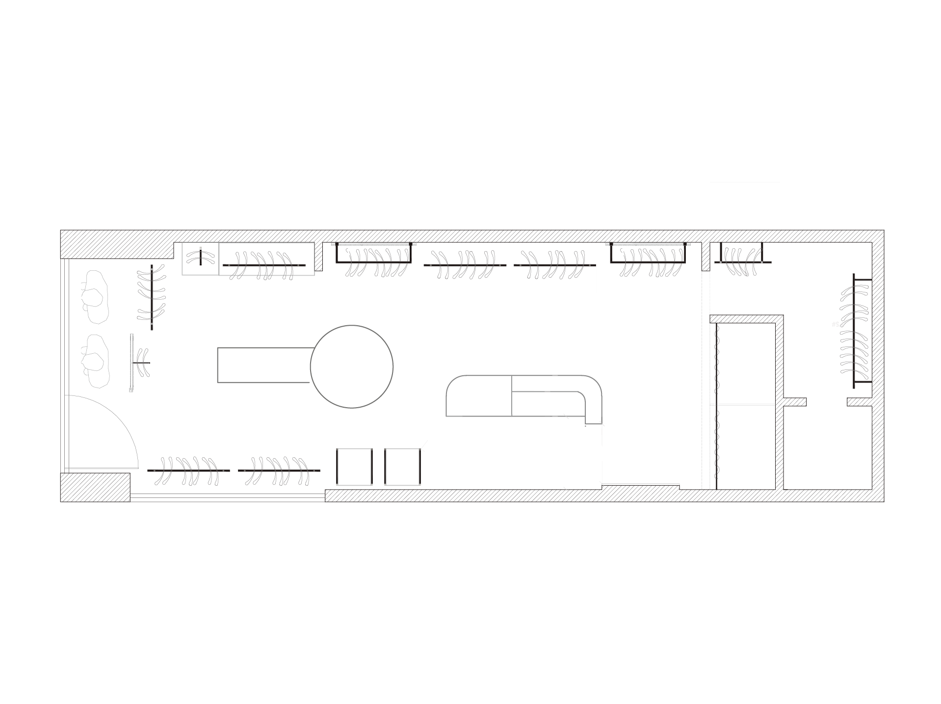
En LB-STUDIO asumimos el desafío de transformar los 31 m2 en una experiencia de compra única. Nuestro objetivo fue fusionar la modernidad con la calidez, logrando un ambiente relajado pero sofisticado. Diseñamos un espacio donde el equilibrio es clave, donde la arquitectura interior y el mobiliario están pensados para que el producto sea el verdadero protagonista.
El interiorismo se destaca por el uso de revestimientos con varillado vertical en tonos claros en las paredes principales. Se resaltan mediante una iluminación técnica estratégica basada en rieles o spots direccionables, que ponen el foco en la mercadería de manera impecable. El mobiliario, diseñado totalmente a medida, sigue esta misma línea funcional y estética. Creamos sistemas de exhibición que combinan estructuras de hierro negro con estantes de madera clara, que nacen desde la losa para dar mayor sensación de altura y amplitud.
La paleta de colores y materiales fue seleccionada meticulosamente para transmitir calidez y elegancia. Utilizamos una base de tonos crema, beige y arena para maximizar la luminosidad, utilizando el negro en detalles metálicos para generar un contraste moderno. Se diseño un piso de terrazo, con el tono de piedras engamado con el color de la madera, logrando una cohesión visual absoluta. La calidez de la madera convive así armónicamente con la fuerza del metal y la textura del terrazo, resultando en un local contemporáneo, acogedor y con una identidad de marca inconfundible.

